Twin Duplex
Duplex Residence at Narayangonj
BASIC INFORMATION
Mehedi Hasan Talukder, Habib Hasan Talukder
Two duplex with common facilities, private home office, oil tanker
design year
2012
Private Duplex Residence
unbuilt, WORLD ARCHITECTURE COMMUNITY AWARD, 13 cycle, April 2013
site area
9 katha
construction area
916 sqm
Khandoker Tariqul Islam, ruksana afroz, Udoy Shankar Datta
Panchaboti, Narayangonj, Bangladesh.
Winner of WORLD ARCHITECTURE COMMUNITY AWARD, 13 cycle, April 2013.
https://worldarchitecture.org/architecture-projects/nzee/twin-duplex-at-narayongonj-project-pages.html
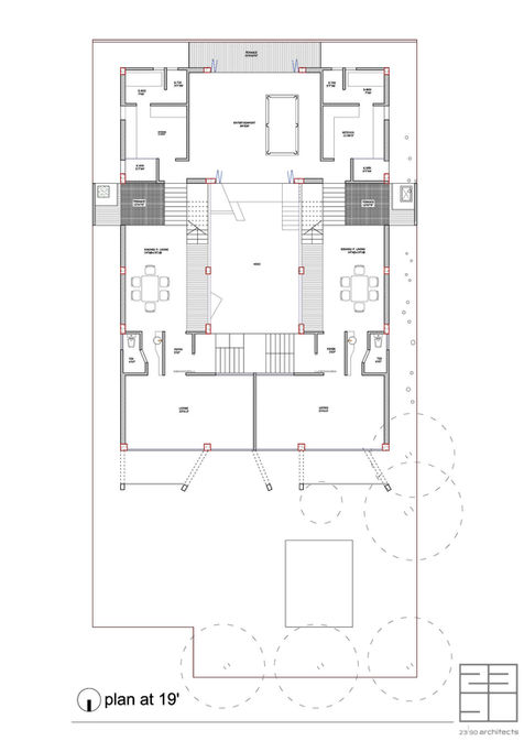
The clients were brothers in relation. Their requirement was two individual duplexes for each of them and their mother’s suit which must be connected with both duplexes. Existing use of the site was a naval gas pump (marine refueling center) and a small office. Client requested to kept both. The concept was derived from the site forces which includes a river that was not visible, as it’s view from the construction zone was being obstructed by a mosque in front of it. The site is also prone to flooding and the surrounding is in mixed used industrial zone with sound and vapor pollution. To protect the structure from effects of flood, the dwelling was raised fifteen feet which also ensured the view to the river. Introvert planning was the goal to protect the dwelling from surrounding and construct its own breathing space.
This house stands out as a concrete, brick/plaster, glass and wood composition in intentional contrast to the natural surroundings. Relatively low-cost material used to minimize building cost. Distinctive finish has been designed to ensure construction with local mason and minimum supervision.
The place was synchronized carefully according to commercial, semi commercial, semi-private and private zone. The dwelling was introvert in plan which provided maximum privacy. There are three levels of children’s playing zone which includes inner court, ground floor and a front lawn. The inner court and two peripheral courts protect indoor spaces from humidity and outdoor noise as well as ensure proper light and ventilation. The Servant quarter was separated from the main suite and is one level down from the living zone. Traditional jail has been used innovatively to provide privacy from surroundings and ensure river view. Setback spaces is not being left over, rather incorporate it with adjacent indoor areas in office and common spaces. The existing trees were not damaged except only one tree was replaced due to structural cause for the dwelling. Landscape was designed to soak maximum rainwater.












